
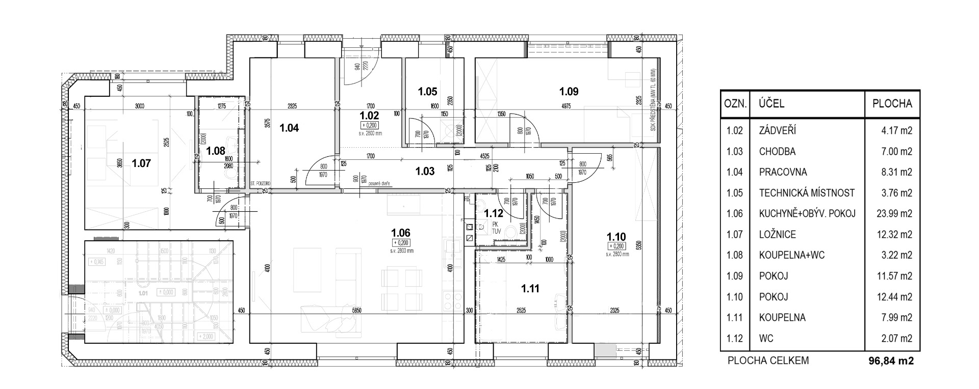
BYT 1
5+KK
Dispozice: 5+KK
Poloha: 1.NP (přízemí)
Obytná plocha: 96.84 m2
Ložnice: 4x
Koupelna: 2x
Koupelna s WC: 1x
Samostatné WC: 1x
Nadstandardně řešený byt 5+KK v přízemí o celkové rozloze 96.84 m2 se dvěma koupelnami je jako stvořený pro pohodový rodinný život.
Dominantou tohoto bytu je vysoký strop 2,8 m, který dělá tento byt vzdušný a jedinečný. Ojedinělý, je také samostatný vstup přímo z ulice.
Byt je vytápěn teplovodním podlahový topením, které zajišťuje samostatný plynový kotel, který slouží také pro ohřev vody. Podlahové vytápění je samostatně regulovatelné v každé místnosti, pro regulaci teploty slouží chytré termostaty AVATTO nebo lze ovládat aplikací v telefonu.
Čeká zde na vás luxusní kuchyňská linka na míru v barvě kašmír a dub, vybavená vestavnými spotřebiči (velká lednice s mrazákem, myčka, indukce, trouby aj...). Televizní stěna s knihovnou a velká předsíňová stěna, vše součást bytu.
V koupelně, na WC a v technické místnosti je moderní dlažba v dekoru béžového kamene a dřevěných lamel. V obytných pokojích a na chodbě je kvalitní vinylová podlaha. Byt je kompletně osazen stropním osvětlením.
V interiéru se nachází kvalitní dveře v barvě kašmír od českého výrobce ZLOMEK. Dřevěná okna VEKRA s trojsklem jsou osazena elektrickými venkovními žaluziemi s motory a ovládáním od SOMFY, které zajistí naprosté soukromí.
V první velké koupelně je dvojumyvadlo, velký sprchový kout a vana. WC je samostané. Druhá malá koupelna se sprchovým koutem a WC, náleží k ložnici, která se nachází na opačné straně bytu.
Obývací prostor s kuchyní a ložnice jsou osazeny klimatizacemi. V technické místnosti se nachází příprava na pračku a sušičku. V bytě je již zřízen funkční internet a v každém pokoji se nacházejí také datové zásuvky.
DOPŘEJTE SI LUXUSNÍ BYDLENÍ
PŮDORYS BYTU


BENEFITY VAŠEHO NOVÉHO BYTU
- Hliníkové vstupní dveře
- Dřevěná okna VEKRA s izolačním trojsklem
- Elektrické předokenní žaluzie VEKRA
- Teplovodní podlahové vytápění s regulací
- Klimatizace
- Zabezpečovací systém JABLOTRON
- Kamerový systém
- Samostatný vstup přímo z ulice
- Luxusní prostorná kuchyně na míru
- Velká koupelna s vanou a sprchovým koutem
- Malá koupelna se sprchou a WC
- Samostatné WC
- Velká technická místnost
- Datové zásuvky v každém pokoji
- TV stěna a nábytek v předsíni

