
BYT 3
4+KK
TENTO BYT JE JIŽ V REZERVACI
Dispozice: 4+KK
Poloha: 3.NP (podkroví)
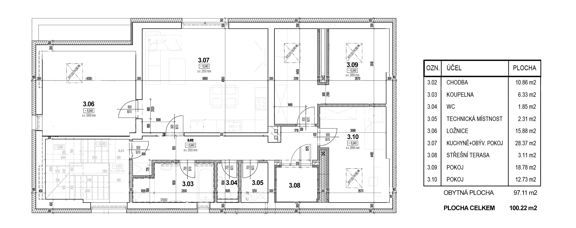
Plocha celkem: 100.22 m2
Ložnice: 3x
Koupelna: 1x
Samostatné WC: 1x
Nadstandardně řešený podkrovní byt 4+KK o celkové rozloze 100.22 m2 s balkonem.
Jedinečný charakter tomuto podkrovímu bytu dodávají viditelné krovy, vyšší stropy v ložnicích a krásné výhledy na zámek a krajinu.
Byt je vytápěn standardním teplovodním topením, které zajišťuje samostatný plynový kotel, který slouží také pro ohřev vody. Vytápění je samostatně manuálně regulovatelné v každé místnosti.
Čeká zde na vás luxusní kuchyňská linka na míru v barvě kašmír a dub, vybavená vestavnými spotřebiči (velká lednice s mrazákem, myčka, indukce, trouby aj...). Televizní stěna a předsíňová stěna, je také součástí bytu.
V koupelně, na WC a v technické místnosti je moderní dlažba v dekoru béžového kamene a dřevěných lamel. V obytných pokojích a na chodbě je kvalitní vinylová podlaha. Byt je kompletně osazen stropním osvětlením.
V interiéru se nachází kvalitní dveře v barvě kašmír od českého výrobce ZLOMEK. Dřevěná okna VEKRA s trojsklem jsou osazena elektrickými venkovními žaluziemi s motory a ovládáním od SOMFY, které zajistí naprosté soukromí.
V koupelně je prostorné umyvadlo, velký sprchový kout a vana. WC je samostatné.
Obývací prostor s kuchyní a všechny ložnice (pokoje) jsou osazeny klimatizacemi, které lze v zimě využívat i pro vytápění. V technické místnosti se nachází příprava na pračku a sušičku. V bytě je již zřízen funkční internet a v každém pokoji se nacházejí také datové zásuvky.
Možnost využívání uzamykatelné kolárny, která se nachází v přízemí.
DOPŘEJTE SI LUXUSNÍ BYDLENÍ
PŮDORYS BYTU


REZERVACE
- Dřevěná okna VEKRA s izolačním trojsklem
- Elektrické předokenní žaluzie VEKRA
- Teplovodní vytápění (radiátory)
- Klimatizace ve všech obytných pokojích
- Zabezpečovací systém JABLOTRON
- Vstupní hliníkové domovní dveře
- Kamerový systém
- Luxusní prostorná kuchyně na míru
- Koupelna s vanou a sprchovým koutem
- Samostatné WC
- Technická místnost
- Datové zásuvky v každém pokoji
- TV stěna a nábytek v předsíni
- Kolárna

